Details
Angebotsart
Usage
VENTE
Stockwerk
Etage 2
Wohnfläche
139 m2
Grundstücksfläche
1
Anzahl der Zimmer
5.5Badezimmer
2
Parkplätze
1
Verfügbarkeit
Disponibilité
Zu vereinbaren
Referenz
Référence
24-613-04-8
Nebenkosten
CHF 4'680.-
Verkaufspreis
CHF 900'000.-
Lage
1430 Orges
Géolocalisation
Beschreibung
body
EXKLUSIV BEI BERNARD NICOD SA.
.
. Entdecken Sie die neue Promotion "Le domaine du Belvédère", die einen atemberaubenden Blick auf den Neuenburgersee und die Alpen bietet. Eingebettet in das charmante Dorf Orges, ist es nach Süden ausgerichtet und bietet allen Bewohnern ein friedliches und grünes Lebensumfeld.
.
. Am Rande einer landwirtschaftlichen Zone gelegen, umfasst dieses Projekt 8 Wohnungen, eine freistehende Villa und ein Geschäftslokal, die sich auf drei verschiedene Gebäude verteilen, die den Charme und die Authentizität des bestehenden Bauernhauses zu bewahren wissen.
.
. Gestalten Sie Ihre Räume, wählen Sie Ihre Traumküche und vollenden Sie Ihre Inneneinrichtung nach Ihrem Geschmack. Ihr zukünftiges Zuhause wird geräumig, komfortabel und an Ihren Lebensstil angepasst sein.
.
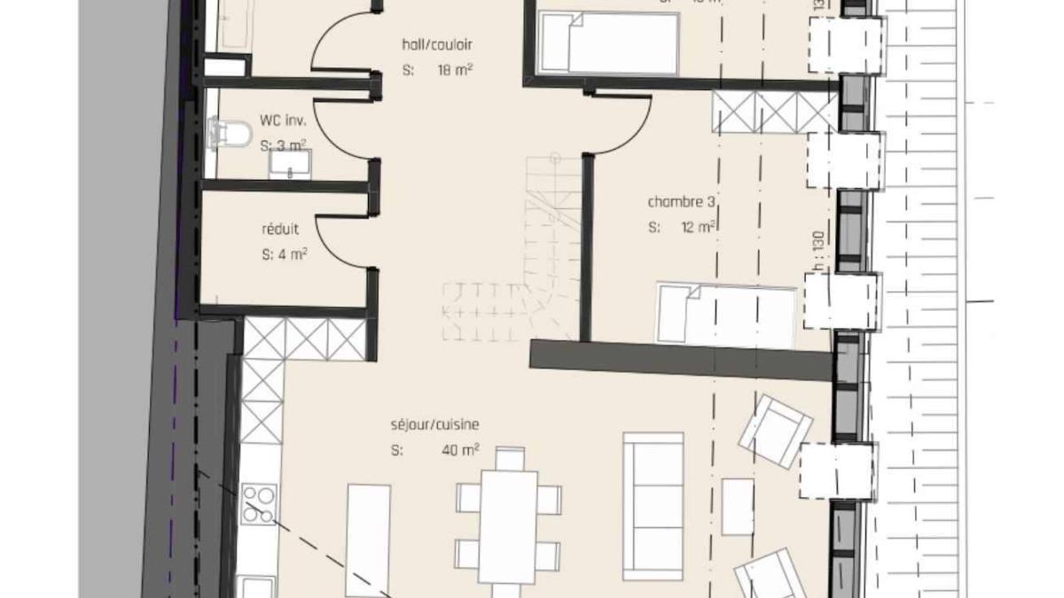
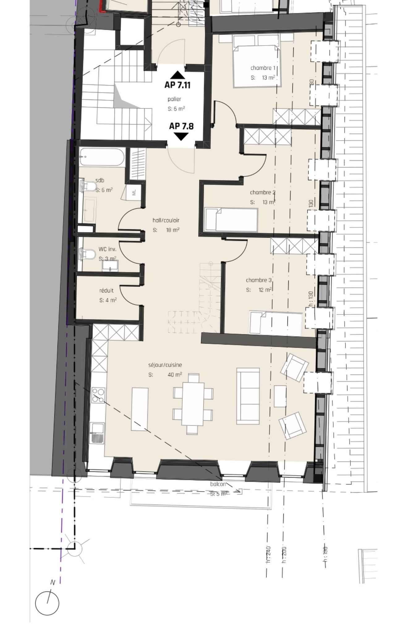
. Diese 5,5-Zimmer-Wohnung befindet sich im 2. Stock und im Dachgeschoss und setzt sich wie folgt zusammen:
.
. Sie werden einen geräumigen Eingangsbereich entdecken, der mit zahlreichen Wandschränken ausgestattet ist, ein großes Wohnzimmer mit offener Küche von ca. 38 m², die einen direkten Zugang zum ersten Balkon bietet.
.
. Der Schlafbereich umfasst drei große Schlafzimmer, von denen eines 16 m² groß ist, sowie ein Badezimmer mit Badewanne, Doppelwaschbecken, WC und Platz für eine Waschsäule. Ein 3 m² großes Reduit vervollständigt diese Ebene und bietet viel Stauraum.
.
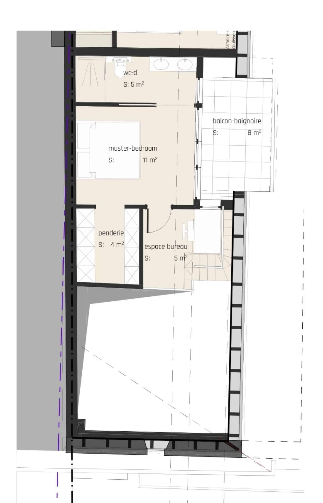
. Auf der 2ᵉ Ebene befindet sich eine wunderschöne Mastersuite mit einem zum Wohnzimmer hin offenen Bürobereich, einem großen, mit vier Schränken ausgestatteten Ankleidezimmer sowie einem Duschbad mit WC und Doppelwaschbecken. Die Mastersuite verfügt außerdem über einen direkten Zugang zum zweiten Balkon.
.
Ein Keller und ein oder zwei Aussenparkplätze (CHF 15'000.- pro Einheit) vervollständigen diese Immobilie. Es besteht die Möglichkeit, eine elektrische Ladestation zu installieren.
.
. Hängende Gärten werden exklusiv den Miteigentümern vorbehalten sein, was ein einzigartiger und wertvoller Vorteil ist.
. Das Gebäude bietet seinen Miteigentümern ein geselliges und gemütliches Carnotzet, das ideal für gemeinsame Momente und Entspannung ist. Jeder Bewohner verfügt außerdem über ein privates Weinregal, das perfekt ist, um ihre kostbaren Flaschen unter optimalen Bedingungen aufzubewahren und zu genießen.
.
. Die gesamte Ausstattung ist den zukünftigen Eigentümern überlassen, die von den angenehmen Budgets profitieren werden, die ihnen zur Verfügung stehen. Ihre Wohnung wird von erfahrenen Spezialisten gebaut, die Ihnen bei allen Fragen zur Seite stehen und Sie während des gesamten Auswahlprozesses beraten. Sie werden Sie führen und Ihre Wünsche verwirklichen!
.
. VORTEILE:
. - Jede Wohnung verfügt über einen Außenbereich, Balkon, Terrasse oder Garten
. - Photovoltaikpaneele zur Reduzierung Ihrer Energierechnungen
. - Endbearbeitung nach Wahl des Käufers
. - Wärmepumpe mit Erdwärmesonden
. - Fenster mit Dreifachverglasung
. - Qualitativ hochwertige Ausführungen
. - Volle Südlage
. - Am Rande der Dorfzone und entlang der geschützten Landwirtschaftszone
.
Der Bau wird von regionalen Handwerkern und mit ökologischen Materialien ausgeführt. Die Qualität der Wärmedämmung der Gebäudehülle entspricht den Anforderungen von Minergie. Die photovoltaische Produktion ermöglicht eine sehr starke Senkung der Kosten für die verbrauchte Energie. Das Regenwasser wird gesammelt und für die Außenwasserhähne, die WCs und die Waschmaschine verwendet.
.
Verkauf in Grundstücksanteilen für reduzierte Kaufkosten!
.
LIEFERUNG: November 2026
.
Informationen und Besichtigungen ALEXANDRA JEREZ und TANIA LEITE 024 424 24 26
.
. Entdecken Sie die neue Promotion "Le domaine du Belvédère", die einen atemberaubenden Blick auf den Neuenburgersee und die Alpen bietet. Eingebettet in das charmante Dorf Orges, ist es nach Süden ausgerichtet und bietet allen Bewohnern ein friedliches und grünes Lebensumfeld.
.
. Am Rande einer landwirtschaftlichen Zone gelegen, umfasst dieses Projekt 8 Wohnungen, eine freistehende Villa und ein Geschäftslokal, die sich auf drei verschiedene Gebäude verteilen, die den Charme und die Authentizität des bestehenden Bauernhauses zu bewahren wissen.
.
. Gestalten Sie Ihre Räume, wählen Sie Ihre Traumküche und vollenden Sie Ihre Inneneinrichtung nach Ihrem Geschmack. Ihr zukünftiges Zuhause wird geräumig, komfortabel und an Ihren Lebensstil angepasst sein.
.
. Diese 5,5-Zimmer-Wohnung befindet sich im 2. Stock und im Dachgeschoss und setzt sich wie folgt zusammen:
.
. Sie werden einen geräumigen Eingangsbereich entdecken, der mit zahlreichen Wandschränken ausgestattet ist, ein großes Wohnzimmer mit offener Küche von ca. 38 m², die einen direkten Zugang zum ersten Balkon bietet.
.
. Der Schlafbereich umfasst drei große Schlafzimmer, von denen eines 16 m² groß ist, sowie ein Badezimmer mit Badewanne, Doppelwaschbecken, WC und Platz für eine Waschsäule. Ein 3 m² großes Reduit vervollständigt diese Ebene und bietet viel Stauraum.
.
. Auf der 2ᵉ Ebene befindet sich eine wunderschöne Mastersuite mit einem zum Wohnzimmer hin offenen Bürobereich, einem großen, mit vier Schränken ausgestatteten Ankleidezimmer sowie einem Duschbad mit WC und Doppelwaschbecken. Die Mastersuite verfügt außerdem über einen direkten Zugang zum zweiten Balkon.
.
Ein Keller und ein oder zwei Aussenparkplätze (CHF 15'000.- pro Einheit) vervollständigen diese Immobilie. Es besteht die Möglichkeit, eine elektrische Ladestation zu installieren.
.
. Hängende Gärten werden exklusiv den Miteigentümern vorbehalten sein, was ein einzigartiger und wertvoller Vorteil ist.
. Das Gebäude bietet seinen Miteigentümern ein geselliges und gemütliches Carnotzet, das ideal für gemeinsame Momente und Entspannung ist. Jeder Bewohner verfügt außerdem über ein privates Weinregal, das perfekt ist, um ihre kostbaren Flaschen unter optimalen Bedingungen aufzubewahren und zu genießen.
.
. Die gesamte Ausstattung ist den zukünftigen Eigentümern überlassen, die von den angenehmen Budgets profitieren werden, die ihnen zur Verfügung stehen. Ihre Wohnung wird von erfahrenen Spezialisten gebaut, die Ihnen bei allen Fragen zur Seite stehen und Sie während des gesamten Auswahlprozesses beraten. Sie werden Sie führen und Ihre Wünsche verwirklichen!
.
. VORTEILE:
. - Jede Wohnung verfügt über einen Außenbereich, Balkon, Terrasse oder Garten
. - Photovoltaikpaneele zur Reduzierung Ihrer Energierechnungen
. - Endbearbeitung nach Wahl des Käufers
. - Wärmepumpe mit Erdwärmesonden
. - Fenster mit Dreifachverglasung
. - Qualitativ hochwertige Ausführungen
. - Volle Südlage
. - Am Rande der Dorfzone und entlang der geschützten Landwirtschaftszone
.
Der Bau wird von regionalen Handwerkern und mit ökologischen Materialien ausgeführt. Die Qualität der Wärmedämmung der Gebäudehülle entspricht den Anforderungen von Minergie. Die photovoltaische Produktion ermöglicht eine sehr starke Senkung der Kosten für die verbrauchte Energie. Das Regenwasser wird gesammelt und für die Außenwasserhähne, die WCs und die Waschmaschine verwendet.
.
Verkauf in Grundstücksanteilen für reduzierte Kaufkosten!
.
LIEFERUNG: November 2026
.
Informationen und Besichtigungen ALEXANDRA JEREZ und TANIA LEITE 024 424 24 26
Kontakt
Image
Image
Prénom
Alexandra
Nom
Jerez
Téléphone
+41 79 945 43 90
Email
alexandra.jerez@bernard-nicod.ch
Yverdon-les-Bains
Ihre Anfrage wurde erfolgreich gesendet.