Details
Offer type
Usage
LOCATION
Floor
Etage 2
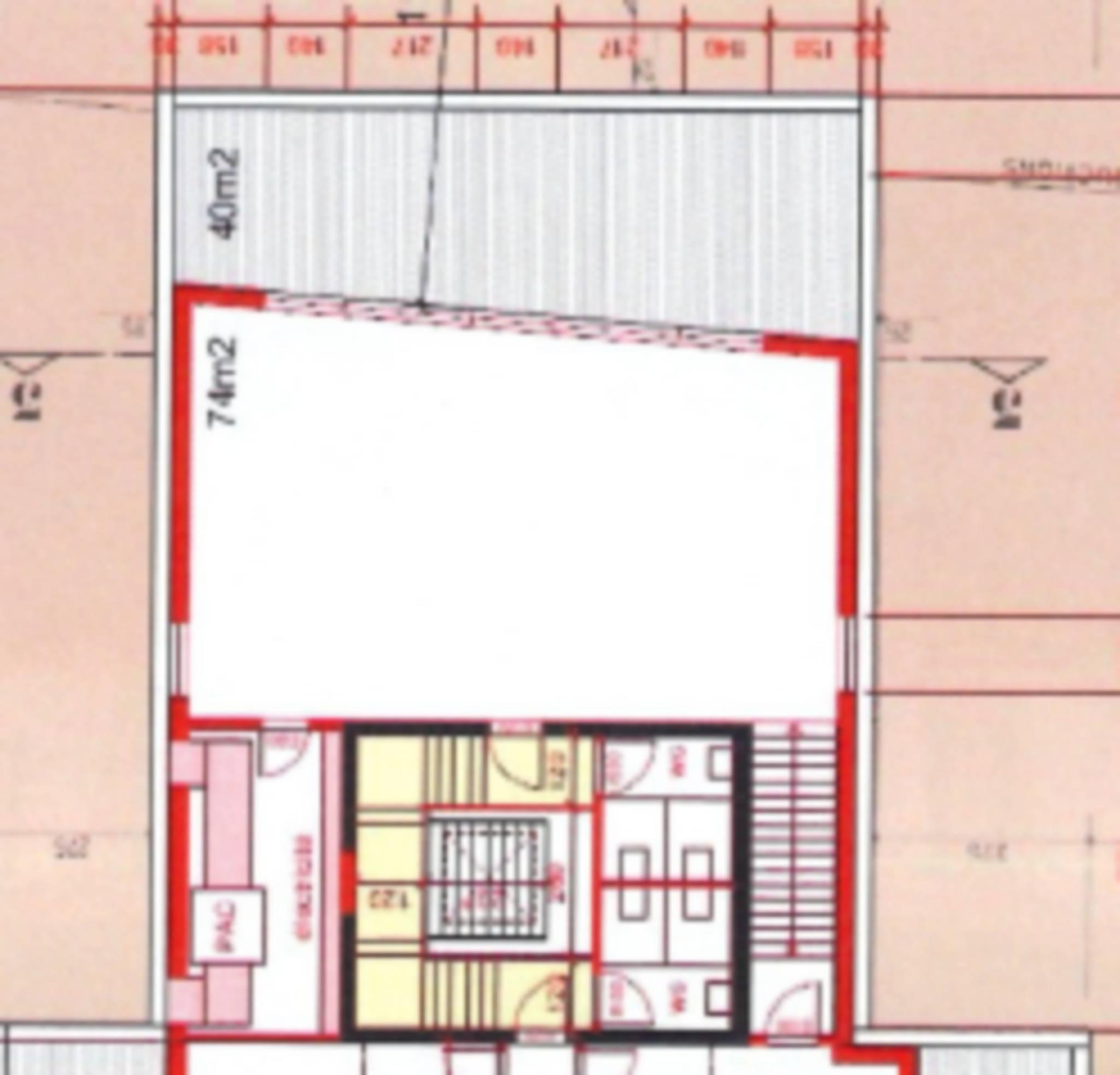
Living area
74 m2
Availability
Disponibilité
More information
Rent
CHF 190.-
Charges
CHF 0.-
Location
1196 Gland
Géolocalisation
Description
body
Located in an industrial zone, close to the freeway entrance, this office, surrounded by greenery, offers a pleasant working environment.
.
It boasts 74m2 of living space with access to a lovely south-facing terrace offering a beautiful view of the lake and vineyards. This office is bathed in light thanks to large bay windows that open onto the spacious terrace.
A private toilet completes this property.
External parking spaces available for CHF 80.00/month/place.
Don't hesitate to contact us for a visit!
Bernard Nicod Nyon SA
022/990.90.90
.
It boasts 74m2 of living space with access to a lovely south-facing terrace offering a beautiful view of the lake and vineyards. This office is bathed in light thanks to large bay windows that open onto the spacious terrace.
A private toilet completes this property.
External parking spaces available for CHF 80.00/month/place.
Don't hesitate to contact us for a visit!
Bernard Nicod Nyon SA
022/990.90.90
Contact
Image
Image
Prénom
Mallory
Nom
Follet
Téléphone
+41 79 220 97 27
Email
mallory.follet@bernard-nicod.ch
Nyon
Your request has been sent successfully.