Détails
Nature de l'offre
Location
Étage
Floor 1
Surface
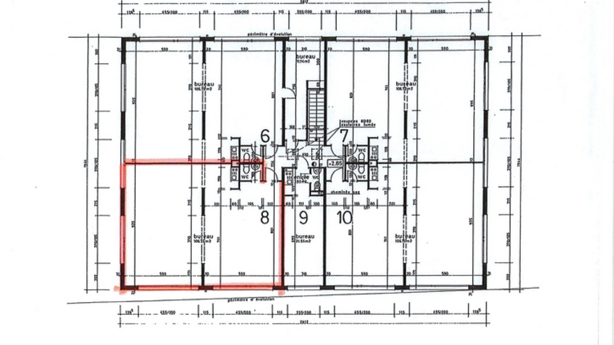
Surface usable 102
Référence
Ref object
210004
Loyer
CHF 235.-
Charges
CHF 17.-
Emplacement
1196 Gland, Rue Riant-Coteau 5
Géolocalisation
Description
Object description
Bureau de 102 m2 idéal pour une activité indépendante ou un usage professionnel libéral.
Idéalement situé à proximité immédiate d'un axe à fort passage, ce bureau dispose d'une belle visibilité.
Situé dans un environnement calme et accessible, ce local fonctionnel et lumineux se compose des éléments suivants :
- Un "open space" avec kitchenette équipée
- une toilette séparé
- 2 bureaux fermés
N'hésitez pas à nous contacter pour effectuer une visite:
Bernard Nicod Nyon SA
022 990 90 90
Idéalement situé à proximité immédiate d'un axe à fort passage, ce bureau dispose d'une belle visibilité.
Situé dans un environnement calme et accessible, ce local fonctionnel et lumineux se compose des éléments suivants :
- Un "open space" avec kitchenette équipée
- une toilette séparé
- 2 bureaux fermés
N'hésitez pas à nous contacter pour effectuer une visite:
Bernard Nicod Nyon SA
022 990 90 90