Détails
Nature de l'offre
Usage
LOCATION
Étage
Etage REZ
Surface habitable
46 m2
Disponibilité
Disponibilité
A convenir
Loyer
CHF 1'600.-
Charges
CHF 133.-
Emplacement
1024 Ecublens VD
Géolocalisation
Description
body
Faites le choix d'un environnement professionnel stimulant et confortable pour développer votre activité en toute sérénité en profitant d'un emplacement stratégique à Ecublens, proche des transports et commerces dans deux immeubles neufs.
Nous vous proposons trois surfaces d'activités modernes, parfaitement adaptées à diverses activités comme celles en relation avec le bien-être (salon de coiffure, barber shop, institut de beauté, coaching sportif, thérapeute, etc), les professions indépendantes ou les commerces de proximité.
Chacune des surfaces au rez-de-chaussée bénéficie d'un accès indépendant, d'un vestiaire privatif et de toutes les commodités nécessaires.
Les trois surfaces disponibles à la location sont les suivantes :
Bâtiment A :
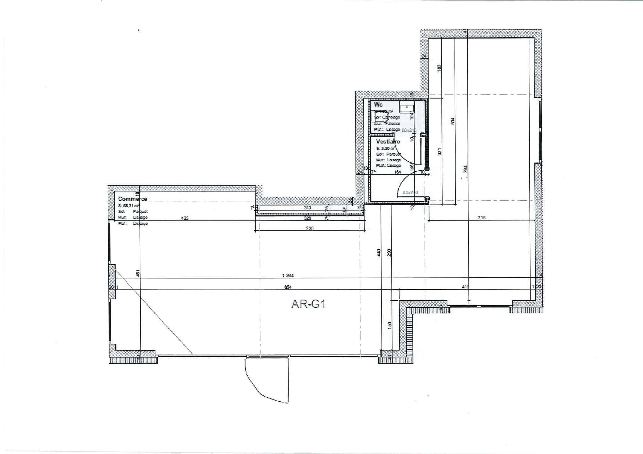
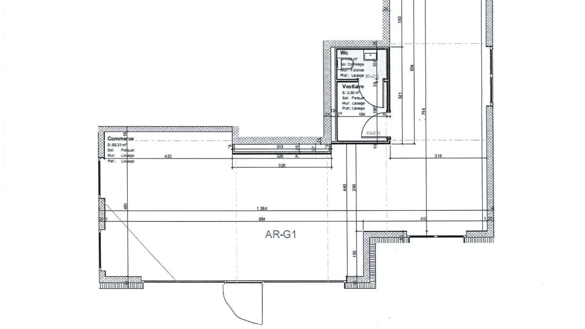
Lot AR-G1: Surface d'activités d'environ 68 m2 avec accès indépendant au rez de chaussée - loyer mensuel net : CHF 1'680.- + acompte mensuel de charges : CHF 173.-
Bâtiment B:
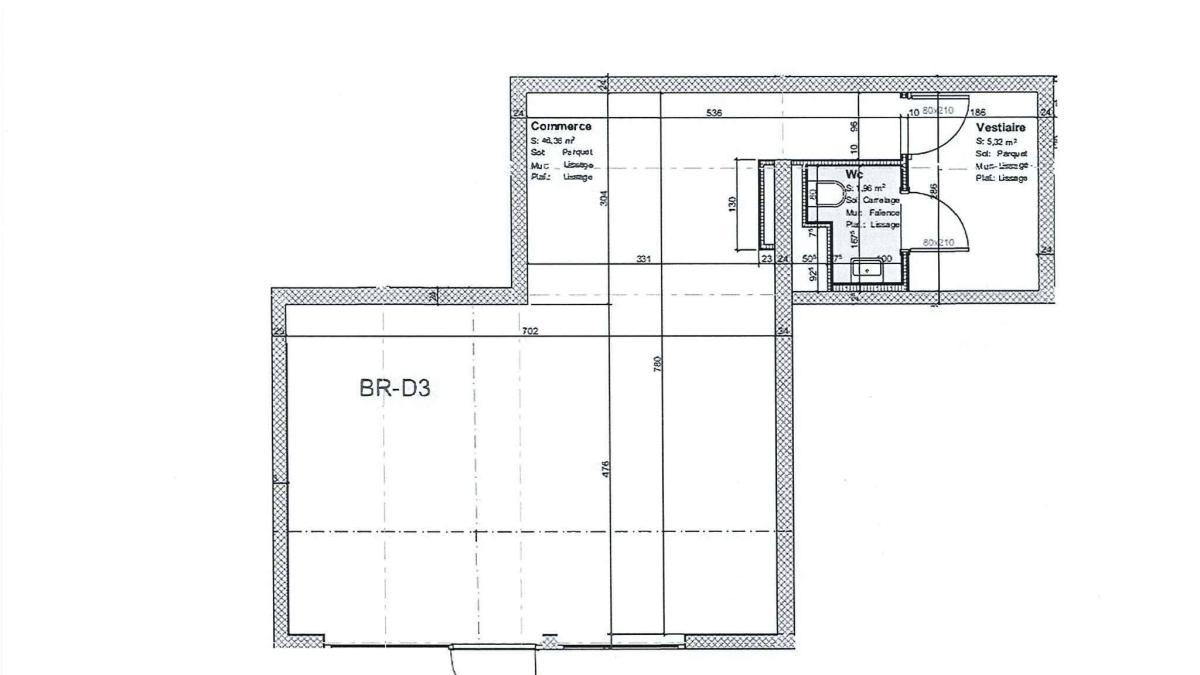
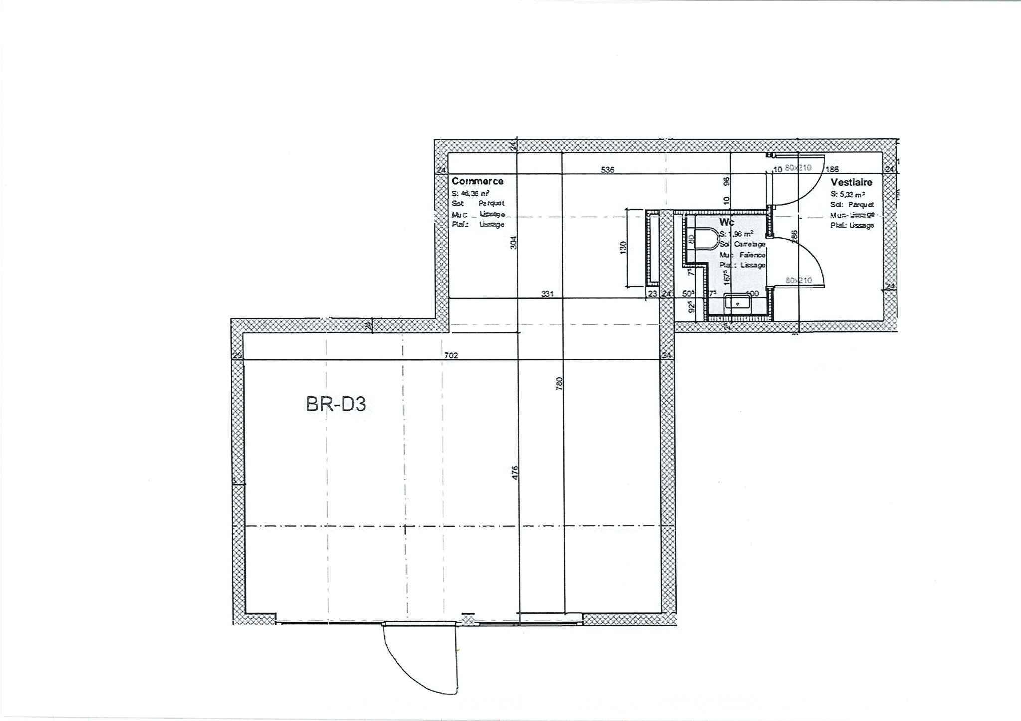
Lot BR-D3 : Surface d'activités d'environ 46 m2 avec accès indépendant au rez de chaussée - loyer mensuel net : CHF 1'600.- + acompte mensuel de charges : CHF 133.-
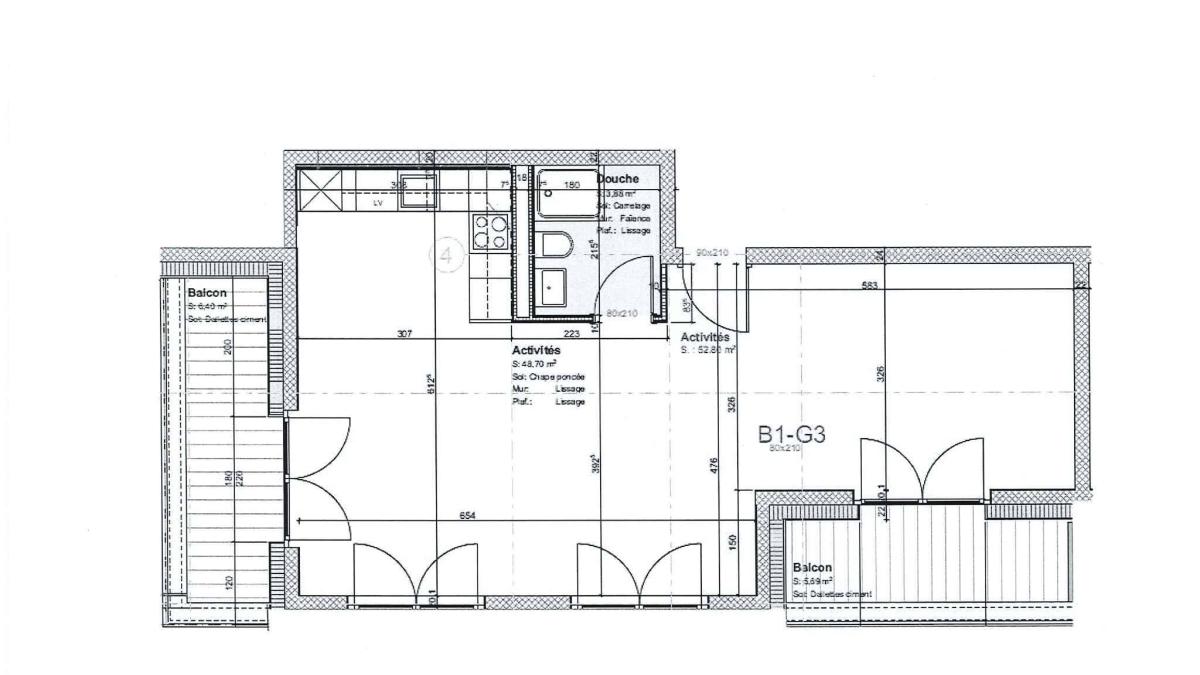
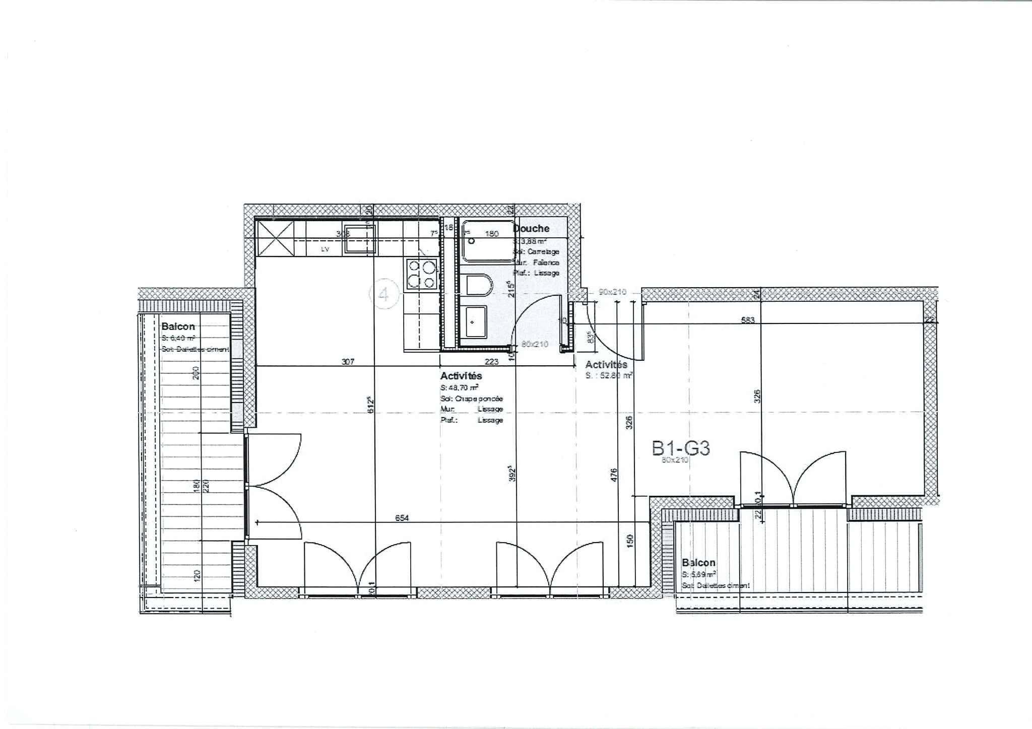
Lot B1-G3 : Surface d'activités d'environ 53 m2 au 1er étage avec balcons - loyer mensuel net : CHF 1'610.- + acompte mensuel de charges : CHF 148.-
* Les plans sont indicatifs, les surfaces sont livrées brutes et les possibilités d'aménagement seront à discuter en cas d'intérêt.
Nous vous proposons trois surfaces d'activités modernes, parfaitement adaptées à diverses activités comme celles en relation avec le bien-être (salon de coiffure, barber shop, institut de beauté, coaching sportif, thérapeute, etc), les professions indépendantes ou les commerces de proximité.
Chacune des surfaces au rez-de-chaussée bénéficie d'un accès indépendant, d'un vestiaire privatif et de toutes les commodités nécessaires.
Les trois surfaces disponibles à la location sont les suivantes :
Bâtiment A :
Lot AR-G1: Surface d'activités d'environ 68 m2 avec accès indépendant au rez de chaussée - loyer mensuel net : CHF 1'680.- + acompte mensuel de charges : CHF 173.-
Bâtiment B:
Lot BR-D3 : Surface d'activités d'environ 46 m2 avec accès indépendant au rez de chaussée - loyer mensuel net : CHF 1'600.- + acompte mensuel de charges : CHF 133.-
Lot B1-G3 : Surface d'activités d'environ 53 m2 au 1er étage avec balcons - loyer mensuel net : CHF 1'610.- + acompte mensuel de charges : CHF 148.-
* Les plans sont indicatifs, les surfaces sont livrées brutes et les possibilités d'aménagement seront à discuter en cas d'intérêt.
Contacter
Image
Image
Prénom
Natacha
Nom
Nzita
Téléphone
+41 21 331 17 52
Email
natacha.nzita@bernard-nicod.ch
Lausanne
Votre demande a bien été envoyée.