À louer - Surface commerciale neuve et modulable (lot E00)

Détails

Nature de l'offre

Location

Étage

Floor 0

Surface

Surface usable 266

Référence

Ref object
190001

Loyer

CHF 6'540.-

Charges

CHF 555.-

Emplacement

1870 Monthey, Pont-Rouge 1c
Géolocalisation

Description

Object description

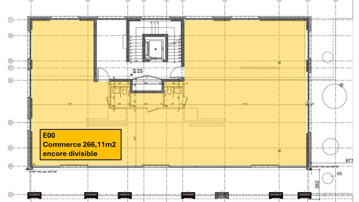
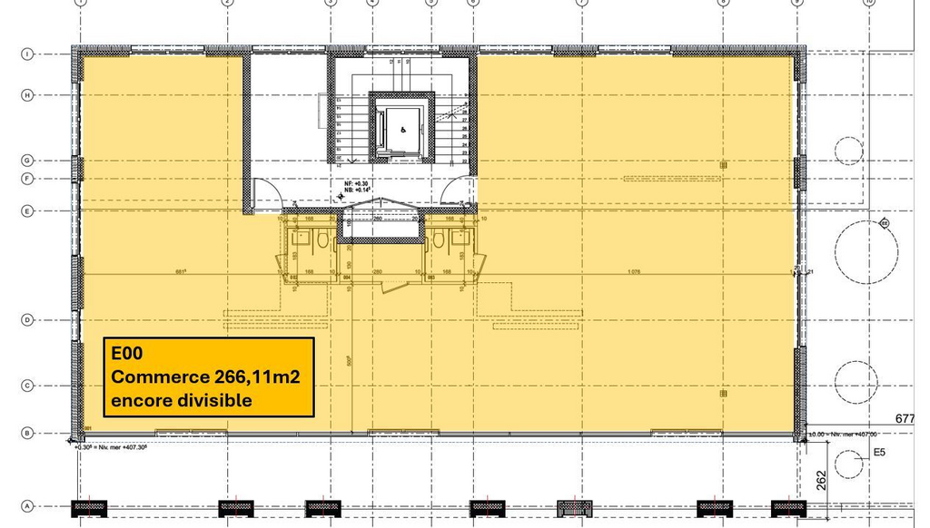
Bâtiment E - Pont-Rouge 1C (lot E00)

Livraison prévue dès le 1er juillet 2026

Nous vous proposons à la location une surface commerciale neuve de 266.11 m2, située au rez-de-chaussée d'un bâtiment actuellement en construction, bénéficiant d'une excellente visibilité au sein d'un quartier en plein essor.

Ce local offre une grande modularité, idéale pour un projet nécessitant des aménagements spécifiques.

Caractéristiques du local :

  • Surface totale : 266.11 m2

  • Surface divisible selon les besoins du locataire

  • Livraison : dès juillet 2026

Conditions financières :

  • Loyer net mensuel : CHF 5'985.-

  • Charges mensuelles : CHF 555.-

  • Loyer brut mensuel : CHF 6'540.-

Stationnement (en sus) :

  • Place extérieure : CHF 100.- / mois

  • Place intérieure : CHF 140.- / mois

Idéal pour :

Commerces, showrooms, cabinets médicaux, bureaux ou activités nécessitant de grandes surfaces.


Au sein de la promotion :

Ce local fait partie d'une nouvelle promotion comprenant d'autres surfaces commerciales.


Intéressé(e) ?
Contactez-nous directement au 024 473 88 88 pour discuter de votre projet et des possibilités d'aménagement.


***Les visuels / images de synthèse et exemples d'implantation commerciale sont non contractuels et servent uniquement à des fins promotionnelles.***