Détails
Nature de l'offre
Usage
VENTE
Étage
Etage 2
Surface habitable
147.6 m2
Surface du terrain
1
Nombre de pièces
5.5Salles d'eau
3
Disponibilité
Disponibilité
A convenir
Référence
Référence
7696-A-D3-F21
Prix de vente
CHF 3'300'000.-
Emplacement
1180 Rolle
Géolocalisation
Description
body
Panorama de rêve ! Faites de l’exceptionnel votre lieu de résidence !
Bernard Nicod SA a le plaisir de vous présenter sa nouvelle promotion « Baie d’Opale ». Celle-ci saura vous émerveiller avec ses immeubles de haut standing à l’architecture contemporaine et sa situation idyllique.
Située à 70m du lac Léman, longeant la plage de Rolle, ce projet est réalisé par notre Entreprise Générale Bernard Nicod SA et prévoit 6 immeubles PPE.
La « Baie d’Opale » comprend des logements de 1.5 pièces à 5.5 pièces de conception moderne et propose des espaces de vie généreux ainsi qu’une excellente luminosité. Des locaux commerciaux sont également disponibles à la vente.
Les appartements du rez-de-chaussée ont un jardin privatif et tous les logements bénéficient de terrasses ou balcons. 11 attiques avec vue panoramique et des rooftop terrasses offrent jusqu’à 249m2 de surface pondérée.
Un espace fitness sera mis à disposition des copropriétaires. Le sous-sol abritera l’ensemble des locaux technique, les caves, buanderies et un parking souterrain.
Les aménagements extérieurs de qualité et très soignés mettrons en valeur l’architecture contemporaine des immeubles qui seront à la hauteur des plus exigeants.
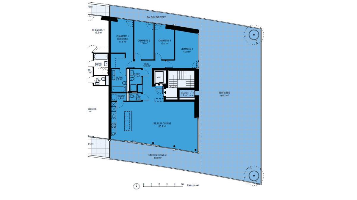
Cet appartement de 5.5 pièces se trouve au deuxième étage du bâtiment D3.
Il se compose comme suit :
Un hall d'entrée avec une armoire murale desservi directement en ascenseur, un séjour / cuisine ouverte avec îlot central de plus de 60 m2 avec accès au balcon couvert et à la terrasse, une salle de douche, un WC séparé, un couloir mène à la zone nuit avec trois chambres à coucher et une chambre parentale avec une salle de bain attenante et un dressing. Les quatres chambres ont accès aux extérieurs. Une buanderie avec arrivées d'eau pour la colonne de lavage. Un réduit.
Deux places de parc intérieures (entre CHF 48'000.- - et 65'000.- par unité en sus) complètent ce bien.
LES ATOUTS :
- Labélisé Minergie P Eco
- Pompe à chaleur à sondes géothermiques
- Panneaux photovoltaïque pour une diminution des coûts de votre facture énergétique
- Ventilation : système double flux
- Thermostat d’ambiance dans toutes les pièces
- Construction par l’Entreprise Générale BERNARD NICOD SA
LIVRAISON :
D1 – D2 = 30.05.2025
D3 = 30.04.2025
B2 = 30.06.2025
B1 Centre = 30.09.2025
B1 Ouest = 31.10.2025
Bernard Nicod SA a le plaisir de vous présenter sa nouvelle promotion « Baie d’Opale ». Celle-ci saura vous émerveiller avec ses immeubles de haut standing à l’architecture contemporaine et sa situation idyllique.
Située à 70m du lac Léman, longeant la plage de Rolle, ce projet est réalisé par notre Entreprise Générale Bernard Nicod SA et prévoit 6 immeubles PPE.
La « Baie d’Opale » comprend des logements de 1.5 pièces à 5.5 pièces de conception moderne et propose des espaces de vie généreux ainsi qu’une excellente luminosité. Des locaux commerciaux sont également disponibles à la vente.
Les appartements du rez-de-chaussée ont un jardin privatif et tous les logements bénéficient de terrasses ou balcons. 11 attiques avec vue panoramique et des rooftop terrasses offrent jusqu’à 249m2 de surface pondérée.
Un espace fitness sera mis à disposition des copropriétaires. Le sous-sol abritera l’ensemble des locaux technique, les caves, buanderies et un parking souterrain.
Les aménagements extérieurs de qualité et très soignés mettrons en valeur l’architecture contemporaine des immeubles qui seront à la hauteur des plus exigeants.
Cet appartement de 5.5 pièces se trouve au deuxième étage du bâtiment D3.
Il se compose comme suit :
Un hall d'entrée avec une armoire murale desservi directement en ascenseur, un séjour / cuisine ouverte avec îlot central de plus de 60 m2 avec accès au balcon couvert et à la terrasse, une salle de douche, un WC séparé, un couloir mène à la zone nuit avec trois chambres à coucher et une chambre parentale avec une salle de bain attenante et un dressing. Les quatres chambres ont accès aux extérieurs. Une buanderie avec arrivées d'eau pour la colonne de lavage. Un réduit.
Deux places de parc intérieures (entre CHF 48'000.- - et 65'000.- par unité en sus) complètent ce bien.
LES ATOUTS :
- Labélisé Minergie P Eco
- Pompe à chaleur à sondes géothermiques
- Panneaux photovoltaïque pour une diminution des coûts de votre facture énergétique
- Ventilation : système double flux
- Thermostat d’ambiance dans toutes les pièces
- Construction par l’Entreprise Générale BERNARD NICOD SA
LIVRAISON :
D1 – D2 = 30.05.2025
D3 = 30.04.2025
B2 = 30.06.2025
B1 Centre = 30.09.2025
B1 Ouest = 31.10.2025