Détails
Nature de l'offre
Usage
VENTE
Étage
Etage 1
Surface habitable
171 m2
Surface du terrain
1367
Nombre de pièces
5.5Salles d'eau
2
Places de parking
1
Disponibilité
Disponibilité
A convenir
Référence
Référence
25-313-01-4
Prix de vente
CHF 1'285'000.-
Emplacement
1316 Chevilly
Géolocalisation
Description
body
NOUVELLE PROMOTION !
Vous appréciez la nature, le calme mais souhaitez également être proche des grandes villes ? Alors optez sans plus tarder pour la nouvelle promotion située au cœur du charmant village de Chevilly.
Ce projet prévoit un immeuble de 5 appartements, de 3.5 à 5.5 pièces dès 133 m2 jusqu'à 202 m2 de surface pondérée.
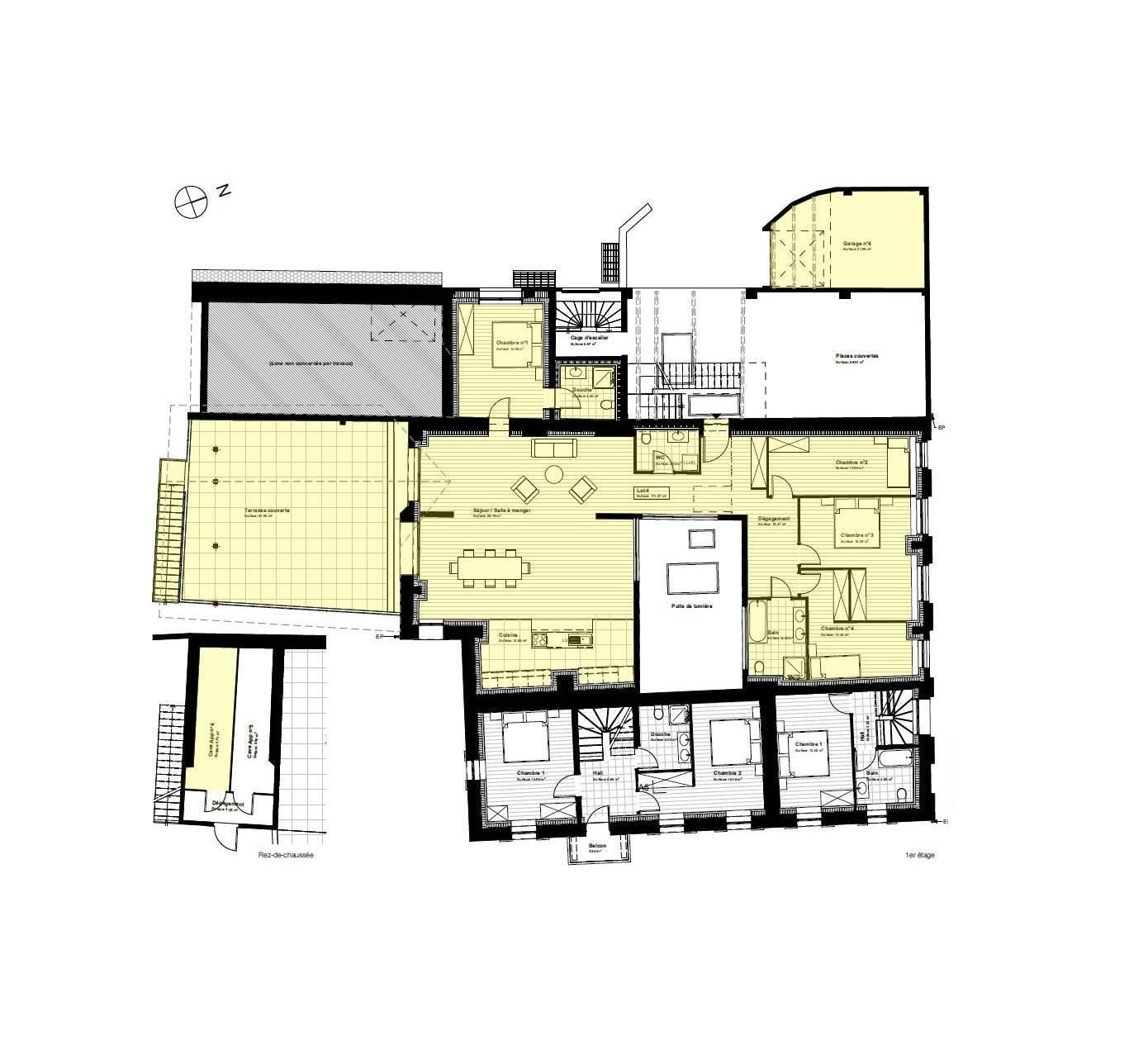
Cet appartement de 5.5 pièces se situe au 1er étage.
Il se compose d'une entrée donnant accès au grand séjour/cuisine de 74 m2 complété par une terrasse couverte de 57 m2. Une suite parentale avec salle de douche privative.
La partie nuit comprend trois chambres et une salle de douche/WC.
Dans l'entrée se trouve un WC visiteur.
Une cave, un garage de 21m2 (CHF 35'000.- en sus) et une place de parc extérieure (CHF 10'000 en sus) complètent ce bien.
Votre futur logement sera spacieux, confortable et adaptée à votre mode de vie.
Le village de Chevilly est situé dans le canton de Vaud en Suisse. C'est une commune qui fait partie du district de Morges.
Chevilly est un petit village pittoresque, entouré de champs et de vignobles, typique de la région vaudoise. Il est situé dans la campagne, à quelques kilomètres au nord de la ville de Morges, qui est la principale ville de la région.
Le village de Chevilly offre un cadre paisible et rural, avec des maisons traditionnelles en pierre et des paysages agricoles. Il est idéal pour ceux qui recherchent la tranquillité et l'authenticité de la vie villageoise suisse. Le canton de Vaud est réputé pour ses paysages variés.
Livraison prévue : été 2026
Finitions au choix de l'acquéreur
Vente en quote-part terrain pour des frais d'achat réduits !
INFORMATIONS ET VISITE au 021 807 15 20
Vous appréciez la nature, le calme mais souhaitez également être proche des grandes villes ? Alors optez sans plus tarder pour la nouvelle promotion située au cœur du charmant village de Chevilly.
Ce projet prévoit un immeuble de 5 appartements, de 3.5 à 5.5 pièces dès 133 m2 jusqu'à 202 m2 de surface pondérée.
Cet appartement de 5.5 pièces se situe au 1er étage.
Il se compose d'une entrée donnant accès au grand séjour/cuisine de 74 m2 complété par une terrasse couverte de 57 m2. Une suite parentale avec salle de douche privative.
La partie nuit comprend trois chambres et une salle de douche/WC.
Dans l'entrée se trouve un WC visiteur.
Une cave, un garage de 21m2 (CHF 35'000.- en sus) et une place de parc extérieure (CHF 10'000 en sus) complètent ce bien.
Votre futur logement sera spacieux, confortable et adaptée à votre mode de vie.
Le village de Chevilly est situé dans le canton de Vaud en Suisse. C'est une commune qui fait partie du district de Morges.
Chevilly est un petit village pittoresque, entouré de champs et de vignobles, typique de la région vaudoise. Il est situé dans la campagne, à quelques kilomètres au nord de la ville de Morges, qui est la principale ville de la région.
Le village de Chevilly offre un cadre paisible et rural, avec des maisons traditionnelles en pierre et des paysages agricoles. Il est idéal pour ceux qui recherchent la tranquillité et l'authenticité de la vie villageoise suisse. Le canton de Vaud est réputé pour ses paysages variés.
Livraison prévue : été 2026
Finitions au choix de l'acquéreur
Vente en quote-part terrain pour des frais d'achat réduits !
INFORMATIONS ET VISITE au 021 807 15 20
Contacter
Image
Image
Prénom
Alexandra
Nom
Jerez
Téléphone
+41 79 945 43 90
Email
alexandra.jerez@bernard-nicod.ch
Yverdon-les-Bains
Votre demande a bien été envoyée.