Détails
Nature de l'offre
Usage
VENTE
Étage
Etage 2
Surface habitable
148 m2
Surface du terrain
1367
Nombre de pièces
4.5Salles d'eau
2
Places de parking
1
Disponibilité
Disponibilité
A convenir
Référence
Référence
25-313-01-5
Prix de vente
CHF 1'130'000.-
Emplacement
1316 Chevilly
Géolocalisation
Description
body
NOUVELLE PROMOTION !
Vous appréciez la nature, le calme mais souhaitez également être proche des grandes villes ? Alors optez sans plus tarder pour la nouvelle promotion située au cœur du charmant village de Chevilly.
Ce projet de rénovation prévoit une PPE de 5 appartements, de 3.5 à 5.5 pièces offrant entre 133 m2 à 202 m2 de surface pondérée.
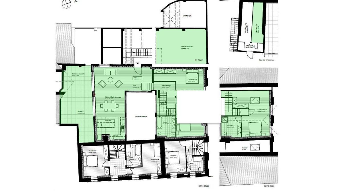
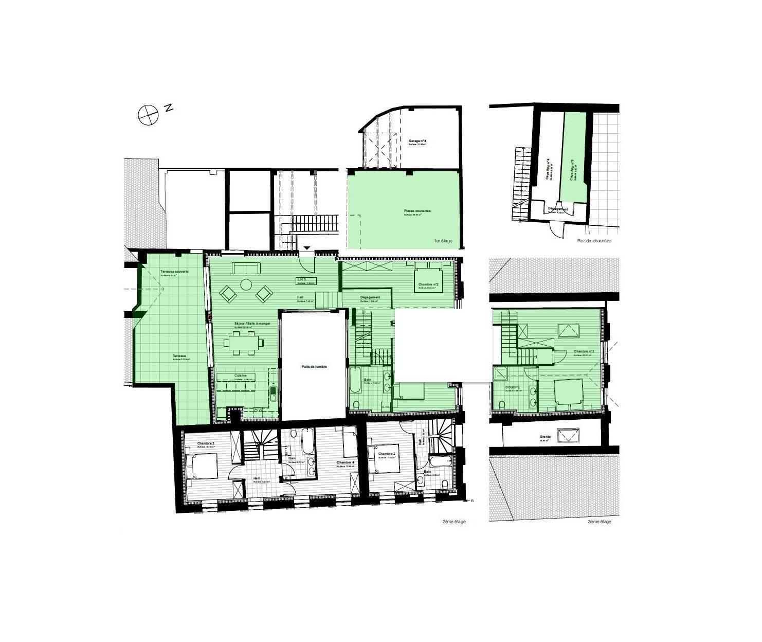
Cet appartement de 4.5 pièces en duplex se situe au 2ème étage. Il se compose comme suit:
Un premier niveau, un grand hall avec sur la droite la partie jour avec une cuisine agencée ouverte sur le vaste séjour donnant accès à la terrasse partiellement couverte de 58m2. Un grand dégagement desservant deux chambres à coucher et une salle de bain/WC.
A l'étage, une suite parentale avec salle de douche privative.
Une cave et deux places de parc couvertes (CHF 20'000 l'unité en sus) complètent ce bien.
Votre futur logement sera spacieux, confortable et adaptée à votre mode de vie.
Le village de Chevilly est situé dans le canton de Vaud en Suisse. C'est une commune qui fait partie du district de Morges.
Chevilly est un petit village pittoresque, entouré de champs et de vignobles, typique de la région vaudoise. Il est situé dans la campagne, à quelques kilomètres au nord de la ville de Morges, qui est la principale ville de la région.
Le village de Chevilly offre un cadre paisible et rural, avec des maisons traditionnelles en pierre et des paysages agricoles. Il est idéal pour ceux qui recherchent la tranquillité et l'authenticité de la vie villageoise suisse. Le canton de Vaud est réputé pour ses paysages variés.
Livraison prévue : été 2026
Finitions au choix de l'acquéreur
Vente en quote-part terrain pour des frais d'achat réduits !
INFORMATIONS ET VISITE au 021 807 15 20
Vous appréciez la nature, le calme mais souhaitez également être proche des grandes villes ? Alors optez sans plus tarder pour la nouvelle promotion située au cœur du charmant village de Chevilly.
Ce projet de rénovation prévoit une PPE de 5 appartements, de 3.5 à 5.5 pièces offrant entre 133 m2 à 202 m2 de surface pondérée.
Cet appartement de 4.5 pièces en duplex se situe au 2ème étage. Il se compose comme suit:
Un premier niveau, un grand hall avec sur la droite la partie jour avec une cuisine agencée ouverte sur le vaste séjour donnant accès à la terrasse partiellement couverte de 58m2. Un grand dégagement desservant deux chambres à coucher et une salle de bain/WC.
A l'étage, une suite parentale avec salle de douche privative.
Une cave et deux places de parc couvertes (CHF 20'000 l'unité en sus) complètent ce bien.
Votre futur logement sera spacieux, confortable et adaptée à votre mode de vie.
Le village de Chevilly est situé dans le canton de Vaud en Suisse. C'est une commune qui fait partie du district de Morges.
Chevilly est un petit village pittoresque, entouré de champs et de vignobles, typique de la région vaudoise. Il est situé dans la campagne, à quelques kilomètres au nord de la ville de Morges, qui est la principale ville de la région.
Le village de Chevilly offre un cadre paisible et rural, avec des maisons traditionnelles en pierre et des paysages agricoles. Il est idéal pour ceux qui recherchent la tranquillité et l'authenticité de la vie villageoise suisse. Le canton de Vaud est réputé pour ses paysages variés.
Livraison prévue : été 2026
Finitions au choix de l'acquéreur
Vente en quote-part terrain pour des frais d'achat réduits !
INFORMATIONS ET VISITE au 021 807 15 20
Contacter
Image
Image
Prénom
Alexandra
Nom
Jerez
Téléphone
+41 79 945 43 90
Email
alexandra.jerez@bernard-nicod.ch
Yverdon-les-Bains
Votre demande a bien été envoyée.