Détails
Nature de l'offre
Usage
LOCATION
Étage
Etage 2
Surface habitable
1000 m2
Disponibilité
Disponibilité
A convenir
Référence
Référence
A-23-010
Loyer
CHF 250.-
Charges
CHF 0.-
Emplacement
1096 Gland
Géolocalisation
Description
body
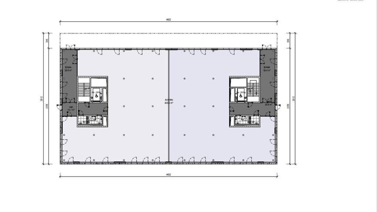
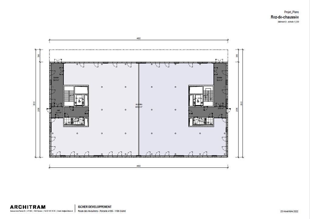
Ces surfaces en cours de construction seront livrées à la fin du premier trimestre 2026 et ont été conçues pour s'adapter à votre besoin que ce soit en terme d'accessibilité ou de flux avec de nombreuses places de parc.
En louant sur plan le futur utilisateur pourra adapter son espace sur mesure.
Le dernier étage avec sa terrasse et une vue sur la campagne et les montagnes offre un cadre de travail unique.
Afin de demeurer proche de ses locataires, le propriétaire propose un loyer dès Fr. 250.--/m2/an qui permet la prise en charge des travaux d'aménagement par le locataire tout en conservant des coûts raisonnables.
Il est également possible de négocier la prise en charge des travaux d'aménagement pour un prix à convenir.
En louant sur plan le futur utilisateur pourra adapter son espace sur mesure.
Le dernier étage avec sa terrasse et une vue sur la campagne et les montagnes offre un cadre de travail unique.
Afin de demeurer proche de ses locataires, le propriétaire propose un loyer dès Fr. 250.--/m2/an qui permet la prise en charge des travaux d'aménagement par le locataire tout en conservant des coûts raisonnables.
Il est également possible de négocier la prise en charge des travaux d'aménagement pour un prix à convenir.