Détails
Nature de l'offre
Usage
VENTE
Surface habitable
96 m2
Surface du terrain
4419
Surface de la parcelle
4419
Nombre de pièces
4.5Salles d'eau
1
Disponibilité
Disponibilité
A convenir
Référence
Référence
25-612-04
Prix de vente
CHF 995'000.-
Emplacement
1417 Epautheyres
Géolocalisation
Description
body
En exclusivité chez Bernard Nicod SA.
Charmante maison de 4.5 pièces avec jardin et vue dégagée sur le Jura à seulement quelques minutes d’Yverdon-les-Bains.
Située dans un cadre verdoyant et paisible sur une parcelle de 4400m2, cette maison individuelle de 4.5 pièces répartie sur 2 niveaux habitables offre un confort optimal pour une famille à la recherche de tranquillité.
Elle se compose comme suit :
Rez-de-chaussée supérieur :
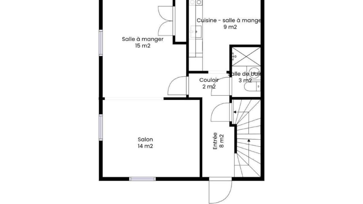
Vous êtes accueilli par un sas d’entrée menant à un corridor qui dessert les différentes pièces de vie. Le séjour lumineux dispose d’un coin salle à manger agrémenté d’armoires murales. La cuisine séparée avec coin manger offre offre un accès direct au premier balcon. Une salle de douches avec WC complète cet étage.
1er étage :
L’espace nuit se compose d'un réduit, de trois grandes chambres à coucher équipées d’armoires murales. Deux des chambres bénéficient d’un accès au second balcon, qui offre une vue dégagée sur le Jura. Depuis le premier étage, vous aurez accès au galetas offrant un potentiel de rangement supplémentaire.
Rez inférieur :
Ce niveau comprend une buanderie/local technique, deux caves pratiques pour le rangement ainsi qu’un WC. Depuis ce niveau, vous bénéficiez d’un accès direct au jardin et à la terrasse, parfaits pour profiter des beaux jours en toute intimité.
À l’extérieur, vous profitez d’une grande terrasse orientée sud-ouest, parfaite pour les repas en plein air ou les moments de détente. Le jardin entièrement arboré d'arbres fruitiers et d'ornements, crée un cadre naturel et accueillant. Deux cabanes de jardin vous permettront de stocker tout le nécessaire pour l’entretien des extérieurs.
Côté stationnement, la propriété dispose de deux garages box fermés, ainsi que de 4 à 5 places de parc extérieures, un véritable atout.
Attenante à la maison, une remise avec accès indépendant vous offre un espace de rangement polyvalent, idéal pour les outils, vélos ou autres équipements.
INFORMATIONS ET VISITES : TANIA LEITE et ALEXANDRA JEREZ 024 424 24 26
Charmante maison de 4.5 pièces avec jardin et vue dégagée sur le Jura à seulement quelques minutes d’Yverdon-les-Bains.
Située dans un cadre verdoyant et paisible sur une parcelle de 4400m2, cette maison individuelle de 4.5 pièces répartie sur 2 niveaux habitables offre un confort optimal pour une famille à la recherche de tranquillité.
Elle se compose comme suit :
Rez-de-chaussée supérieur :
Vous êtes accueilli par un sas d’entrée menant à un corridor qui dessert les différentes pièces de vie. Le séjour lumineux dispose d’un coin salle à manger agrémenté d’armoires murales. La cuisine séparée avec coin manger offre offre un accès direct au premier balcon. Une salle de douches avec WC complète cet étage.
1er étage :
L’espace nuit se compose d'un réduit, de trois grandes chambres à coucher équipées d’armoires murales. Deux des chambres bénéficient d’un accès au second balcon, qui offre une vue dégagée sur le Jura. Depuis le premier étage, vous aurez accès au galetas offrant un potentiel de rangement supplémentaire.
Rez inférieur :
Ce niveau comprend une buanderie/local technique, deux caves pratiques pour le rangement ainsi qu’un WC. Depuis ce niveau, vous bénéficiez d’un accès direct au jardin et à la terrasse, parfaits pour profiter des beaux jours en toute intimité.
À l’extérieur, vous profitez d’une grande terrasse orientée sud-ouest, parfaite pour les repas en plein air ou les moments de détente. Le jardin entièrement arboré d'arbres fruitiers et d'ornements, crée un cadre naturel et accueillant. Deux cabanes de jardin vous permettront de stocker tout le nécessaire pour l’entretien des extérieurs.
Côté stationnement, la propriété dispose de deux garages box fermés, ainsi que de 4 à 5 places de parc extérieures, un véritable atout.
Attenante à la maison, une remise avec accès indépendant vous offre un espace de rangement polyvalent, idéal pour les outils, vélos ou autres équipements.
INFORMATIONS ET VISITES : TANIA LEITE et ALEXANDRA JEREZ 024 424 24 26
Contacter
Image
Image
Prénom
Alexandra
Nom
Jerez
Téléphone
+41 79 945 43 90
Email
alexandra.jerez@bernard-nicod.ch
Yverdon-les-Bains
Votre demande a bien été envoyée.