Détails
Nature de l'offre
Usage
VENTE
Étage
Etage 1
Surface habitable
78 m2
Surface du terrain
1
Nombre de pièces
4.5Salles d'eau
2
Places de parking
1
Disponibilité
Disponibilité
A convenir
Référence
Référence
25-613-01-4
Prix de vente
CHF 775'000.-
Emplacement
1374 Corcelles-sur-Chavornay
Géolocalisation
Description
body
NOUVELLE PROMOTION A CORCELLES-SUR-CHAVORNAY
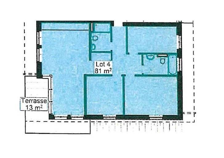
Cet appartement de 4.5 pièces se situe au 1er étage de l'immeuble A. Il offre une surface habitable d'environ 81 m2 et est conçu pour offrir un espace de vie confortable et fonctionnel.
L'appartement dispose d'un balcon de 13 m2.
Il se compose comme suit :
Un hall d'entrée avec armoires murales. La partie jour avec le séjour/cuisine donnant accès au balcon et une salle de douche/WC. La partie nuit se compose de deux chambres à coucher, un bureau et une salle de bains avec WC.
L'immeuble propose également d'autres commodités pour les résidents, telles qu'un parking souterrain, une buanderie commune et un local vélo.
Deux places de parc intérieures (30'000 CHF l'unité en sus), ainsi qu'une cave complètent ce bien.
Livraison : environ septembre 2026
Finitions au choix de l'acquéreur
Vente en quote-part terrain pour des frais d'achat réduits !
INFORMATIONS ET VISITES : ALEXANDRA JEREZ et TANIA LEITE : 024 424 24 26
Cet appartement de 4.5 pièces se situe au 1er étage de l'immeuble A. Il offre une surface habitable d'environ 81 m2 et est conçu pour offrir un espace de vie confortable et fonctionnel.
L'appartement dispose d'un balcon de 13 m2.
Il se compose comme suit :
Un hall d'entrée avec armoires murales. La partie jour avec le séjour/cuisine donnant accès au balcon et une salle de douche/WC. La partie nuit se compose de deux chambres à coucher, un bureau et une salle de bains avec WC.
L'immeuble propose également d'autres commodités pour les résidents, telles qu'un parking souterrain, une buanderie commune et un local vélo.
Deux places de parc intérieures (30'000 CHF l'unité en sus), ainsi qu'une cave complètent ce bien.
Livraison : environ septembre 2026
Finitions au choix de l'acquéreur
Vente en quote-part terrain pour des frais d'achat réduits !
INFORMATIONS ET VISITES : ALEXANDRA JEREZ et TANIA LEITE : 024 424 24 26
Contacter
Image
Image
Prénom
Alexandra
Nom
Jerez
Téléphone
+41 79 945 43 90
Email
alexandra.jerez@bernard-nicod.ch
Yverdon-les-Bains
Votre demande a bien été envoyée.