Détails
Nature de l'offre
Usage
VENTE
Étage
Etage REZ
Surface habitable
61 m2
Surface du terrain
1
Surface de la parcelle
1
Places de parking
1
Disponibilité
Disponibilité
A convenir
Référence
Référence
24-613-04-8
Charges
CHF 2'520.-
Prix de vente
CHF 480'000.-
Emplacement
Orges 1430, Clos Mermod
Géolocalisation
Description
body
EN EXCLUSIVITE CHEZ BERNARD NICOD SA.
Découvrez la nouvelle promotion " Le domaine du Belvédère " qui offre une vue imprenable sur le lac de Neuchâtel et les Alpes. Nichée dans le charmant village d'Orges, elle est orientée plein sur et elle offre un cadre de vie paisible et verdoyant à tous ses résidents.
Situé en bordure de zone agricole, ce projet comprend 8 appartements, une villa individuelle et un local commercial répartis dans 3 bâtiments distincts qui sauront garder le charme et l'authenticité de la ferme existante.
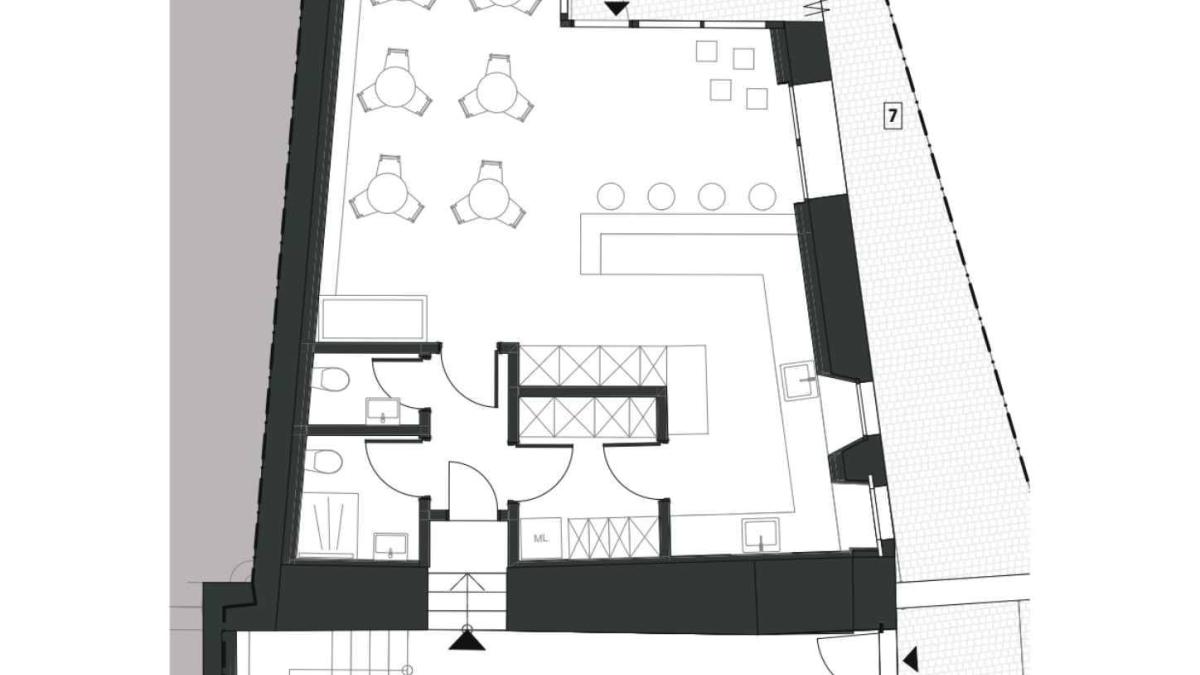
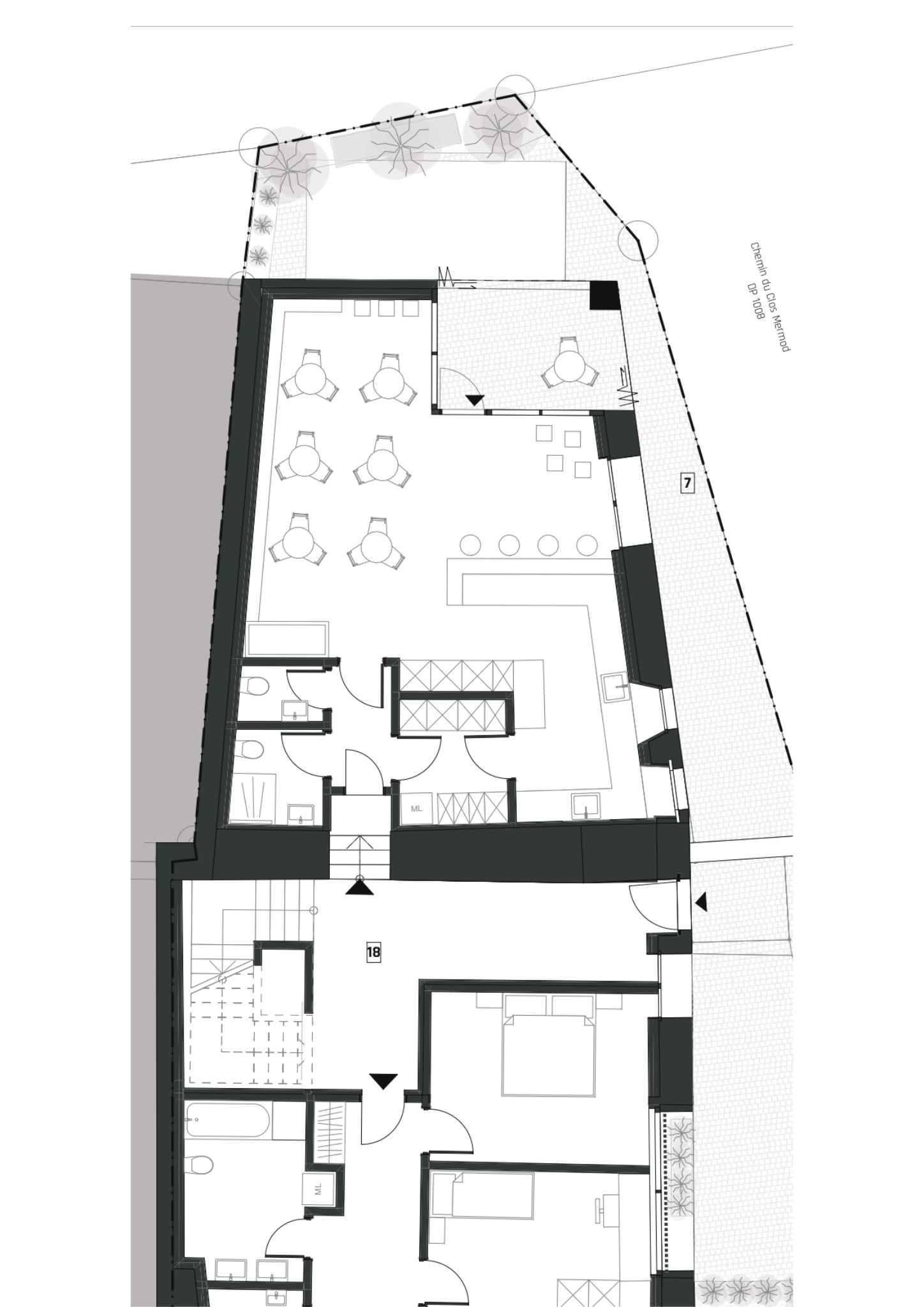
Ce local commercial se situe au rez-de-chaussée, il se compose comme suit :
Un accès privé à l'arrière depuis l'entrée du bâtiment, une grande surface commerciale de 48 m2 avec terrasse couverte de 9 m2 et terrasse de 23 m2. Un vestiaire ainsi qu'un WC et un WC accessible aux personnes à mobilité réduite.
La surface commerciale est vendue brut.
Une cave et une ou deux places de parc extérieures (CHF 15'000.- l'unité) complètent ce bien. Il est possible de poser une borne de recharge électrique.
Des jardins suspendus seront réservés exclusivement aux copropriétaires ce qui est un atout unique et précieux.
L'immeuble offre à ses co-propriétaires un carnotzet convivial et chaleureux, idéal pour des moments de partage et de détente. Chaque résident dispose également d'un casier à vin privatif, parfait pour conserver et savourer leurs précieuses bouteilles dans des conditions optimales.
Votre logement sera réalisé par des spécialistes aguerris qui seront là pour répondre à toutes vos questions et vous conseiller tout au long du processus de choix. Ils vous guideront et concrétiseront vos souhaits !
ATOUTS :
- Chaque appartement dispose d’un extérieur, balcon, terrasse ou jardin
- Panneaux photovoltaïques pour réduction de vos factures d’énergie
- Finitions au choix de l’acheteur
- Pompe à chaleur avec sondes géothermiques
- Fenêtres triple vitrage
- Finitions de qualité
- Plein SUD
- En bordure de la zone village et longeant la zone agricole protégée
La construction est réalisée par des artisans régionaux et des matériaux écologiques. La qualité de l’isolation thermique de l’enveloppe correspond aux exigences de Minergie. La production photovoltaïque permet une très forte réduction des coûts de l’énergie consommée. L’eau de pluie sera récupérée et utilisée pour les robinets extérieurs, les WC et les machine à laver le linge.
Vente en quote-part terrain pour des frais d'achat réduits !
LIVRAISON : novembre 2026
Informations et visites : Alexandra Jerez et Tania Leite 024 424 24 26
Découvrez la nouvelle promotion " Le domaine du Belvédère " qui offre une vue imprenable sur le lac de Neuchâtel et les Alpes. Nichée dans le charmant village d'Orges, elle est orientée plein sur et elle offre un cadre de vie paisible et verdoyant à tous ses résidents.
Situé en bordure de zone agricole, ce projet comprend 8 appartements, une villa individuelle et un local commercial répartis dans 3 bâtiments distincts qui sauront garder le charme et l'authenticité de la ferme existante.
Ce local commercial se situe au rez-de-chaussée, il se compose comme suit :
Un accès privé à l'arrière depuis l'entrée du bâtiment, une grande surface commerciale de 48 m2 avec terrasse couverte de 9 m2 et terrasse de 23 m2. Un vestiaire ainsi qu'un WC et un WC accessible aux personnes à mobilité réduite.
La surface commerciale est vendue brut.
Une cave et une ou deux places de parc extérieures (CHF 15'000.- l'unité) complètent ce bien. Il est possible de poser une borne de recharge électrique.
Des jardins suspendus seront réservés exclusivement aux copropriétaires ce qui est un atout unique et précieux.
L'immeuble offre à ses co-propriétaires un carnotzet convivial et chaleureux, idéal pour des moments de partage et de détente. Chaque résident dispose également d'un casier à vin privatif, parfait pour conserver et savourer leurs précieuses bouteilles dans des conditions optimales.
Votre logement sera réalisé par des spécialistes aguerris qui seront là pour répondre à toutes vos questions et vous conseiller tout au long du processus de choix. Ils vous guideront et concrétiseront vos souhaits !
ATOUTS :
- Chaque appartement dispose d’un extérieur, balcon, terrasse ou jardin
- Panneaux photovoltaïques pour réduction de vos factures d’énergie
- Finitions au choix de l’acheteur
- Pompe à chaleur avec sondes géothermiques
- Fenêtres triple vitrage
- Finitions de qualité
- Plein SUD
- En bordure de la zone village et longeant la zone agricole protégée
La construction est réalisée par des artisans régionaux et des matériaux écologiques. La qualité de l’isolation thermique de l’enveloppe correspond aux exigences de Minergie. La production photovoltaïque permet une très forte réduction des coûts de l’énergie consommée. L’eau de pluie sera récupérée et utilisée pour les robinets extérieurs, les WC et les machine à laver le linge.
Vente en quote-part terrain pour des frais d'achat réduits !
LIVRAISON : novembre 2026
Informations et visites : Alexandra Jerez et Tania Leite 024 424 24 26
Contacter
Image
Image
Prénom
Alexandra
Nom
Jerez
Téléphone
+41 79 945 43 90
Email
alexandra.jerez@bernard-nicod.ch
Yverdon-les-Bains
Votre demande a bien été envoyée.