Détails
Nature de l'offre
Usage
VENTE
Étage
Etage REZ
Surface habitable
158.2 m2
Surface du terrain
1
Nombre de pièces
4.5Salles d'eau
2
Places de parking
2
Disponibilité
Disponibilité
A convenir
Référence
Référence
25-613-04-A03
Prix de vente
CHF 2'410'000.-
Emplacement
1422 Grandson
Géolocalisation
Description
body
Panorama de rêve ! Découvrez la nouvelle promotion « Les Roseaux » située au bord du lac de Neuchâtel sur la commune de Grandson. Des appartements confortable et moderne aux finitions haut de gamme. « Les Roseaux » vous offre un cadre de vie unique et privilégié, les pieds dans l’eau.
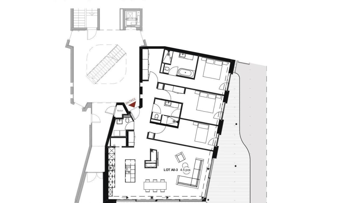
Cet appartement de 4.5 pièces au rez-de-chaussée se compose comme suit :
Une grande cuisine avec un ilot centrale ouvrant sur le séjour/salle à manger, une chambre parentale avec salle de bains et douches, 2 chambres, une salle de douches avec WC, un WC séparé avec raccord pour colonne de lavage et un réduit.
Une cave de 19m2, une terrasse de 104m2, un jardin de 103m2 ainsi que 2 place de parcs (CHF 60'000.- l'unité) en sus complètent ce bien.
Un cadre de vie exceptionnel :
- Nature et détente : Située entre lac et montagnes, Grandson offre un cadre préservé, idéal pour des promenades au bord du lac, des activités nautiques et un cadre calme et paisible.
- Commodités à proximité : À quelques minutes du centre de Grandson, avec commerces, restaurants, écoles et transports en commun accessibles en un clin d’œil.
- Qualité de construction : Immeubles certifiés Minergie, éco-responsables, dotés de panneaux solaires et de systèmes de chauffage efficaces pour une consommation énergétique réduite et un confort thermique optimal.
- Architecture moderne : Lignes épurées, volumes généreux et finitions soignées, pour une harmonie parfaite avec l’environnement naturel.
Pour plus d’informations, contactez-nous Tania Leite & Alexandra Jerez au 024 424 24 26
Cet appartement de 4.5 pièces au rez-de-chaussée se compose comme suit :
Une grande cuisine avec un ilot centrale ouvrant sur le séjour/salle à manger, une chambre parentale avec salle de bains et douches, 2 chambres, une salle de douches avec WC, un WC séparé avec raccord pour colonne de lavage et un réduit.
Une cave de 19m2, une terrasse de 104m2, un jardin de 103m2 ainsi que 2 place de parcs (CHF 60'000.- l'unité) en sus complètent ce bien.
Un cadre de vie exceptionnel :
- Nature et détente : Située entre lac et montagnes, Grandson offre un cadre préservé, idéal pour des promenades au bord du lac, des activités nautiques et un cadre calme et paisible.
- Commodités à proximité : À quelques minutes du centre de Grandson, avec commerces, restaurants, écoles et transports en commun accessibles en un clin d’œil.
- Qualité de construction : Immeubles certifiés Minergie, éco-responsables, dotés de panneaux solaires et de systèmes de chauffage efficaces pour une consommation énergétique réduite et un confort thermique optimal.
- Architecture moderne : Lignes épurées, volumes généreux et finitions soignées, pour une harmonie parfaite avec l’environnement naturel.
Pour plus d’informations, contactez-nous Tania Leite & Alexandra Jerez au 024 424 24 26
Contacter
Image
Image
Prénom
Alexandra
Nom
Jerez
Téléphone
+41 79 945 43 90
Email
alexandra.jerez@bernard-nicod.ch
Yverdon-les-Bains
Votre demande a bien été envoyée.